第二編 追悼
第一章 三合里戦友会の活動
戦後四十年を経た頃、戦友の中にはぼつぼつ第一線を退いて、己の来し方を振り返り、永年胸に抱いていた心のしこりを果たそうという気持ちになっていた。これが消えかかっていた戦友同士の友情を再び蘇らせ、戦友会の結成へと導いたのである。一般に部隊や連隊の戦友会は多いが、抑留された収容所の戦友会は極めて珍しい。三合里収容所はそれだけ我々の人生に深刻な影響を与えた結果に外ならない。
第一節 三合里戦友会の結成と初期活動
三合里戦友会は神戸市在住の阿部鐵太郎氏(元三合里収容所舎営本部糧秣掛)、佐藤廉氏(同被服掛)及び大阪市在住の中川俊二氏(同技術掛)の三氏が発起人となり、昭和六十年四月三十日、手元で所在の判明している戦友達に呼びかけて、戦友会設立に就いて意見交換を行い、次いで同年八月三十一日、神戸の「風月堂」に於いて設立総会を開催した。総会案内は東北、関東、中部、近畿、中国、四国、九州各地で所在が判明した六十五名に出したが、当日出席したのは東北地区四名、関東地区三名、近畿地区八名、中・四国地区四名の計十九名であった。なお、九州地区からは高倉氏が出席予定であったが、台風の影響で出席できなかった。
戦友会設立に就いては、出席者全員異議なく賛成し、ここに初めて戦友会の結成を見ることが出来た。会の名誉会長に八戸市在住の木村一栄氏(舎営司令官補佐)を選出、代表世話人に阿部鐵太郎、佐藤廉、中川俊二の三氏を、地区世話人に、東北地区・小田島英雄、関東地区.小室鐵雄、中部地区・若林善良、近畿地区・中川清、中国・四国地区・梅田日出男、九州地区・高倉桃太の各氏を選出した。
その設立要項はその後若干の変遷があったものの、付属文書付表12「三合里戦友会会則並びに組織表」の通りである。
第二回総会は関東ブロックが担当となり、昭和六十一年四月十四日、伊豆熱川「熱川温泉ホテル」で開催したが、出席者は十六名であった。 第三回総会は東北ブロックが担当となり、昭和六十二年六月二十五日、蔵王温泉「ホテルかしわや」で開催、総会出席者十九名で、会員の拡充に努めたものの、会員数は七十九名に過ぎなかった。
以上三年間の戦友会の初期活動を見ると、年一回の親睦旅行に終始し、会本来の調査活動をするまでには至らなかった。その原因は冒頭にも述べたように、戦友会の基盤が単一部隊のような強固な絆がなかったことにあると考えられる。
三合里に収容され、シベリアに送られた作業大隊は、原隊をバラバラに解体されて、単に千名単位の作業大隊が編成され、かっ頻繁に配転が繰り返された結果、見ず知らずの者の集まりの感を呈し、各個人同士の絆が唯一の拠り所となっていた。
ましてや、シベリアから逆送された患者達は、シベリア各地から数人すっ集められた者達であったので、隣に寝ている者の名前すら判らない状況であった。
当戦友会はこのような背景を基盤にしている関係で、戦友同士の絆は個人単位で横の広がりを望むべくもなく、有るのはただ「三合里」に抑留された奇しき運命と、彼の地で亡くなった戦友達を悼む気持ちが唯一の拠り所となっている集まりであった。
第二節 追悼のための資料収集
世は平成に代わり、東西両陣営が冷戦終結宣言を出すに至って、シベリア墓参が現実視され、ひょっとしたら北朝鮮の墓参も可能になるかも知れないと思い立ち、その時になって慌てないように、予め資料を準備して置く必要を痛感した。そこで平成二年三月十五日、朝日新聞「マリオン」欄に投稿し、第四回総会の開催と参加を呼びかけて貰った。ところがその日から、毎日のように事務局に電話連絡があり、また友達同士の紹介もあった結果、四十数名の新規加入となり、総勢百四十七名となった。
これにより平成二年五月十日、東京市ヶ谷「グランドヒル市ヶ谷」に於いて第四回総会を開催したが、四十三名の出席者を得て、盛大に挙行された。
この結果、会員の総意を得て会則を一部改正し、「死亡した戦友の慰霊、墓参を行う」と会の目的を明確にし、当面の運動方針として、死亡者数の確認とその名簿の整備、並びに埋葬場所の確認等、本格的な調査活動に乗り出すことにした。このため全国を六ブロックに分け、東京に事務局を移し、情報の相互連絡を密にすると共に、今後の会の運営は小委員会を設けて審議するよう組織を強化した。その概要を付属文書の付表12に示す。
この年、会員相互の情報交換の一環として、平和祈念特別基金に関する情報を流して受給の啓蒙を促した。また、没収された死亡者名簿の返還を求めて、ソ連当局に問い合わせの手紙を出した。
この平和祈念事業特別基金等に関する法律は、戦後ソ連又はモンゴルの地域に於いて強制抑留された方で、日本に帰還した戦後強制抑留者又はその遺族で、昭和六十三年八月一日に日本国籍を有する方に慰労品(書状・銀杯)を贈呈すると共に、それらの方々のうち年金恩給等を受給していない方には更に慰労金として、十万円(二年償還の記名国債)を支給するという内容である。その期間は昭和六十三年八月一日から平成五年三月三十一日までである。
ところがこの法律では、同じソ連の強制抑留下にありながら、中国東北部(旧満州)や北朝鮮に在った者は対象外であることが判った。その理由は確かでないが、これらの地域から帰還した者は正規の日ソ送還協定に含まれていなかったからではないかと思われる。(第一編第二章第四節回参照)
我々会員の抑留の経緯は複雑で大別すると次のような分類になる。
イ、北朝鮮三合里→シベリア→舞鶴
ロ、北朝鮮三合里→シベリア→三合里→佐世保
ハ、中国東北部(旧満州)又は北方地域→シベリア→三合里→佐世保
二、北朝鮮三合里→佐世保
このうちイの組は受給資格があるが、他はシベリア在留証明がない限り受給資格が無いという。元々この法律の制定過程が不可解であり、真にソ連強制抑留者を労わる気持ちがあるならば、抑留地域を限定したり、差別したりすること自体おかしいと思う。後世の史家に批判を仰ぎたい。
時あたかもソ連邦のペレストロイカにより、少しずつソ連強制抑留の情報が公開され始め、これら関係要人の相互往来が行われた。特にソ連側からはソ聯赤十字(赤新月同盟)副総裁シリンスキー、同捜索局副局長タリフタフォヒッチ、ソ聯法律家協会副議長キリシェンコの三氏が来日し、抑留死亡者の情報公開を約して帰った。
そこで我々も嘗て三合里や興南で没収された死亡診断書や死亡者名簿が、ソ連本国に保管されているかも知れないと思い、これら要人に次のような手紙を出し捜索を要請することにした。
手紙は仲啓一氏の手により露文に書き直し、平成二年十二月十一日キリシェンコ氏にファックスにより送付した。(ただし反応は現在まで何もない)
「親愛なるアレックス・キリシェンコ様
法政大学下斗米教授のご紹介により、謹んでお手紙を差し上げます。日頃から日ソ間の交流を阻害する諸問題を除去すべく、特にシベリア抑留問題に積極的に取り組んで居られる事に深く感謝の意を表すと共に、今後のご活躍に多大の期待を寄せるものであります。
さて、私ども三合里戦友会は北朝鮮の平壌郊外にある三合里収容所にて生死を共にした者の集まりです。この収容所では一九四五年九月より一九四七年三月の一年六カ月間に約千六百余名の戦友が死亡しました。その大部分は栄養失調による病死です。これら死亡した者の氏名は今もって半分しか判っておりません。その理由は一九四六年十二月収容所閉鎖時に死亡診断書を、一九四七年三月興南に於いて帰国の乗船時に死亡者名簿をそれぞれソ連当局によって没収されだからです。
それでも各個人が書き写して持ち帰ったため、辛うじて半分程度の氏名は判明しております。
今般貴殿の来日により、その当時没収した資料の一部が歴史資料館に保管されているとの噂を耳にしました。もしかして、北朝鮮の資料もその中に有りはしまいかと一縷の望みを託して、お手紙を書きました。
北朝鮮には三合里の他に古茂山収容所があり、そこでは三合里以上の死亡者があったと言われていますので、或いは一緒に保管されているかも知れません。是非とも調査して見て下さるようお願い申し上げます。
貴国はペレストロイカとは申せ幾多の困難があることと存じますが、何卒私どもの希望を叶えさせて下さるようお願い致します。
一九九0年十二月十一日敬具」
死亡者名簿の形状十八・二糎×二十五・七糎厚み一糎
第五回総会は平成三年十一月十五日、前回と同様「グランドヒル市ヶ谷」で開催し、二十八名の出席者を得て、一年の成果を報告されたが、埋葬個所の調査を除いては見るべきものが得られなかった。会員数は百七十九名になっていた。
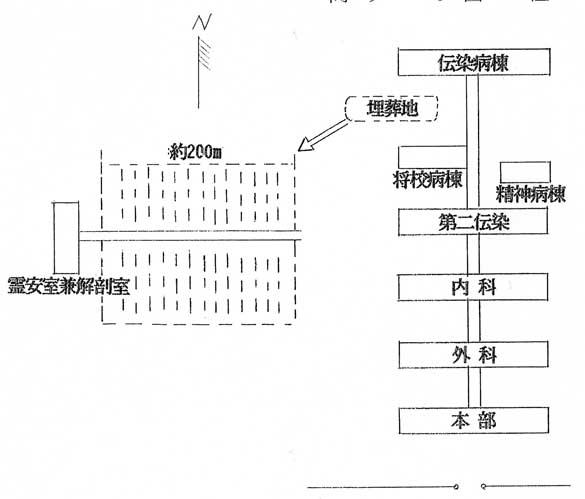
(一)死亡者埋葬場所の調査
(イ)三合里収容所
場所─収容所東方約一・五キロ位の丘、数峰
期間─昭和二十年八月二十八日より同二十一年十二月十八日の間
推定死亡者数 千三百余名
情報提供者 駒崎繁利氏、高倉桃太氏その他
図4三合里収容所埋葬場所見取り図

(口)秋乙収容所
場所─収容所衛門を出て西方へ徒歩約二十分位の丘中腹
期間─昭和二十一年四月初めより同年十二月三十日の間、一部二十二年三月二日まで
推定死亡者数 百二十余名
情報提供者 宮崎誠治氏その他
図5 秋乙収容所埋葬場所見取り図

(ハ)秋乙病院(旧平壌第一陸軍病院)
場所─病院敷地内の伝染病棟の前庭
期間─昭和二十年八月中旬より同二十一年三月下旬の間
推定死亡者数 百六十余名
情報提供者 永添泰雄氏、岩田公子氏その他

(ニ)平壌第二陸軍病院
場所─病院敷地内松林の軍馬待避壕に埋葬
期間─昭和二十年八月中旬より同年九月八日の間
推定死亡者数 十五乃至二十名新京第二陸軍病院の避難輸送中死亡の二名を含む
情報提供者 緒方千尋氏その他

(ホ)その他埋葬場所不明死亡は確認されているが、何処に埋葬したか判明しない者は次の通りである。
美勒洞収容所-大橋見習士官一名不詳一誤射殺、昭和二十年九月初め頃。
平壌山手国民学校-新京第二陸軍病院が疎開中数名死亡し、校庭の一隅に埋葬したという。氏名不詳(飯沼三郎氏情報提供)
昭和二十年八月二十四日から数日の間。
鎮南浦作業所-五名、氏名は判っているが、作業所の何処かに埋葬したと思われる。昭和二十一年九月五日より二十五日の間。
三合里収容所-逃亡兵二名は銃殺されたが、埋葬場所は銃殺位置の前の穴だという。
銃殺位置は大略判っているので、特定は出来る。昭和二十年十一月二十三日であるという。
なお、昭和二十一年十二月十八日三合里収容所を出立する時、埋葬出来ない遺体が三十数体霊安室にあった。
当時地面は凍っていて人力では穴が掘れない状況であったので、やむなくそのままにしたという。
遺骨二社─興南に於いて乗船時ソ軍により没収された二柱の遺骨があったが、氏名は不詳、
内一柱は新京二病佐藤ミフ婦長ではないかと考えられる。
(二) 地図上の場所特定について
三合里収容所、秋乙収容所等の位置を現存する地図の上で、確認する作業を数年に亘って続けたが、推定は出来るものの、確定するまでに至らなかった。
その理由は、国会図書館等に現存する平壌付近の地図は、大正五年に作成されたものを昭和十年頃補正したもので、平壌師団が新設された昭和十五、六年頃のものが作られていないこと、加えて五十年を経過しているので、各自の記憶が極めてあやふやであることに因る。
ただ、三合里の住所は平安南道大同郡青龍面西三合里とあるので、山川の地形から大略推定は可能で、美勒洞も同様である。秋乙収容所については栗里地区の何処か、諸説があって推定にも自信がなかった。これら推定位置を付属文書の行地図2、3に示す。
(三) 死亡者名簿と遺族調査
会員各自が持ち帰った死亡者名の資料の提出と、平壌各地で亡くなった人数の聞き取り調査をした結果、その全体像は大略把握出来たものの、氏名の方は殆どめぼしい進展はなかった。
平成三年十二月に至り、小室鐵雄氏や山本三郎氏等の努力と参議院議員板垣正氏(日本遺族会顧問)の好意により、我々が持ち帰った死亡者名簿の写しを入手することが出来た。その内容は前編第四章にて述べた通りであるが、この結果、資料収拾は一挙に進展し、遺族調査へと突き進むことが出来た。
遺族調査は先ず、都道府県別に死亡者名簿を区分し、留守宅の住所を現在の住居表示に直し、その上で居住の有無を問い合わせたが、留守宅住所が必ずしも本籍地ではなく、戦後の度重なる表示変更や、戦災による区画整理等で、所在不明の者が多かった。更に、調査を阻んだやっかいな問題に、個人のプライバシーの壁があった。この様な困難な状況下にも拘らず、調査を担当した各地区の世話人はすべて手弁当で努力して下さり、半年で三割余の遺族を探し出してくれた。これにはかなりの出費を要したが資金がないので、世話人の寄付の好意に甘えた。
遺族調査の結果判ったことは、戦後四十数年が経ったので、ご両親が他界されているのは当然として、兄弟姉妹も高齢者で、奥様も高齢で存命されて居られる方はいいほうで、子息は殆ど父の顔を知らない者が多かったが、存じよりの方は皆喜んでくれた。そしてこの遺族の方々にとって戦後は未だ終わっていないことを知らされた。
しかし、甥や姪に至っては、死亡者の名前は聞いたことがあるとしても、顔は全然覚えがないので遠い昔話と関心が薄く、歳月の長さに驚かされた。ただ一つ残念でならなかったことは、遺族を食い物にする悪徳業者と誤解されたのか、拒否された遺族もあったことで、戦後の人心の荒廃を見る思いがした。
死亡者名簿は地域により、全部持ち帰った処とそうでない処との落差が大きく、遺族調査にしても都市部は農村部に比べ判明率が悪く、また会員の無い処は殆ど調査が進展していない等アンバランスの状態なので、今後はこの問題の解消に取り組まなければならない。
この名簿以外に各自の持っている死亡者の情報を申告してもらったが、姓が判明した程度で、それ以上の情報を得るには余りにも時間が経過し過ぎた感があった。
第三節 追悼法要の開催
これらの成果から、平成四年八月の総会に、初めて戦没者追悼の法要を併せ行うことを決定し、法要場所として国立「千鳥が淵戦没者墓苑」を選んだ。何しろ初めて行う法要であるので、勝手が判らず会員の中で僧籍にある安田光義、古賀妙両氏の協力を得て、仏式により行うことを決め、リハーサルまで実施して万全を期した。
第六回総会は平成四年十一月十三日、東京市ヶ谷.グランドヒル市ヶ谷」で開催したが、これに先だって十二時より戦没者追悼法要を千鳥が淵墓苑で挙行し、会員並びに遺族の方々五十余名が参列して、厳かに執り行われた。幸い天候にも恵まれ穏やかな日差しのもと、浄土真宗本願寺派、松若教会、主管往々木圓月導師の表白に感涙し、戦友会代表木村一栄氏、遺族代表福島幸之助氏各位の追悼の辞に、亡き戦友への想いを新たにした。そして今回完成した八百八十一名の名簿を祭壇に供え、残された八百余名の者を無名戦士にしないことを誓った。
総会では遺族の中にも会員希望者が居られることから、会員の資格に遺族を加えることが了承され、共に最終目的である現地墓参に向かって努力することを誓い合った。
また遺族の判明率は未だ三三パーセントで、手を付けていない都道府県が十四もあるので、尚一層会員の協力を要請した。
今回の法要は戦後四十七年にして初めて挙行されたこと、戦没者の内半数以上の氏名が判明したこと、その遺族と初めて語り合うことが出来たことの、何れを取って見ても戦友会にとっては画期的なことで、永年の努力が報われたものと感謝している。
そのため、追悼法要に奉納された請文を採録し、永く記念として残したい。
今回の法要には遠く九州地区から来られた遺族もおられたが、殆ど関東地区が多かったので、参列したくても遠くて出来ない遺族があったことを伺わせた。このため戦友会の今後の課題として、他地区での追悼法要を企画する必要が考えられた。
表白
敬って
西方願主阿弥陀如来教主釈迦牟尼尊乃至一切の三宝に白して言さく。
本日ここに「平壌地区ソ連抑留戦没者追悼法要」を厳修し奉る。
夫れ惟れば今次大戦の終焉より数えて四十有余年の歳月は過ぎたり。今日ここに至りて往事を回顧せんに万感交々胸に迫るものあり。
「出まして還ります日の無きと聞く」
歌にある如く、望郷の念一入ながら、その故郷の土を踏み得ずして、北冥の広野「三合里」の地に吹雪と散るられしご無念の程、悲嘆痛恨言うべくもなし。
今にして猶、そのお姿、彷彿として眼前に迫るものあり。
然りと雖も、一身を捧げて祖国の平和と繁栄を招来し給う御身各位の尊い御業こそ、大乗菩薩の悲願、捨身布施の大行にも相似て、歴史と共に永く忘れ得ざる功なり。
今ここ千鳥が淵戦没者墓苑の聖域、馥郁たる菊花もて、恭しく尊前を荘厳し、各地よりの御遺族と共に、追弔報恩の誠を捧げ奉る。
勧請するところの御身各位漸くにしての結縁の微衷を汲み給わん事を乞希う。
各々の懐かしき面影、ついで善知識となり、聞き難き仏法に目覚め、阿弥陀如来の本願に帰依して、西方安養浄刹に倶合一処の妙果を証せん事をお示し給うか。
誠に以って有り難き事哉。
如来大悲を布れて、三宝哀感、授受し給えと、
敬って白す。
南無阿弥陀仏 合掌
平成四年十一月十三日 釈圓月拝
追悼の辞
秋容清爽のみぎり、今を去る四十七年前、万感の無念の想いを抱いて亡くなった千六百余名の戦友の英霊に対し、ご遺族の方々と共に厳粛に追悼法要を営むことが出来ましたことは、三合里戦友会として感激に堪えぬところで御座います。
想えば昭和二十年八月十五日は、我々の人生を根底から覆した運命の日でありました。平壌地区に集結した三万余の将兵は、ある者は戦に傷つき、ある者は病に仆れ、元気な者はもとより、病弱者と雖も生死の権を剥奪され、ソ連軍により設けられた三合里収容所に抑留され、逐次すべてシベリアに送られました。
翌二十一年六月、平壌地区の将兵が殆どシベリアに送られた後、酷寒の彼の地で飢えと寒さで栄養失調となり、労働に耐えないと言うことで、シベリアから三合里に逆送されて来た患者達、即ち諸兄達の悲惨な姿がありました。到着後間もなく伝染病の襲うところとなり、僅か三カ月で六百余名が亡くなりました。この惨状は、我々の脳裏に永久に焼き付いて忘れること.が出来ないばかりではなく、亡くなられた諸兄の為にも子々孫々まで語り継がねばならないと思って居ります。幸いにして我々生き残った者達は、無事復員することが出来ましたが、これも諸兄が身代わりとなってくれたものと、片時も忘れることは出来ませんでした。
爾来各戦友には、それぞれの人生が待っており、戦後の復興に一時は他を顧みる暇がありませんでしたが、齢還暦を過ぎる頃ともなりますと、同じ想いで亡くなられた諸兄の鎮魂のため、出来ることをやらねばと、生き残った戦友が連携をとり、帰還復員後四十年を過ぎた昭和六十年夏、三合里戦友会を結成して活動して参りました。
平壌地区で死亡された諸兄達の死亡診断書並びに死亡者名簿、遺品、遺髪等は帰国の乗船の際にすべてソ連軍に没収されて、持ち帰ることが出来ませんでしたが、辛うじて心ある有志が筆写して隠し持ち帰った名簿が現存する唯一の資料でした。今般これらの名簿を整理・調整し、併せて会員各位が記憶していた死亡者を加え、八百八十三名の名簿を霊前に供えることが出来ました。しかし未だ氏名の判らない戦友達が残り八百余名に及んで居ります。帰国を前にして亡くなられた英霊達は、その後今日まで訪れる者一人も無く、三合里の丘に淋しく眠っておられるのであります。
我々が収容されていた三合里収容所は、朝鮮民主主義人民共和国の首都平壌郊外であった為、墓参の可能性は今のところ全くありません。ご遺族の方々は一日千秋の想いで居られることと思いますが、政治情勢の変化を待つより外に方法がありません。一日も早く墓参が出来るように、諸準備を進める積もりであります。
我々はこのような地理的条件の相違で、ソ連・モンゴル等で抑留されていた者達と全く違った扱いを受けておりますが、「歴史に残らない歴史」にならないよう、我々戦友会は着実に一つ一つの問題を解決して行かねばなりませんし、今日生き残った我々が戦争を知らない世代に、正しく伝えることが将来に果たすべき義務であると信じます。
在天の友よ、どうぞ安らかにお眠り下さい。そして祖国の平和発展とその進路をお守り下さるように、又何をおいてもご遺族の方々の健康長寿をお守り下さるよう、お願い申し上げ私の追悼の辞と致します。
平成四年十一月十三日
三合里戦友会 名誉会長木村一栄
追悼の辞
本日ここに三合里戦友会のご尽力により、貴方がたの追悼法要が挙行されるに当たり、平壌地区ソ連抑留戦没者の遺族を代表して、謹んで追悼の誠を捧げます。
世界第二次大戦におきましては、尊い命が多く失われました。
特に旧ソ連邦に抑留された兵士にとりましては、内地に帰れる日を夢見ながら、苦しくしかも厳しい強制労働に耐えて頂きましたが、不幸にして病に仆れ、平壌の三合里と言う処に送られ、医薬品の不自由な中で関係者の手厚い看護や励ましを頂きながらも、不幸にしてその尊い生命を失われたと聞かせて頂きました。
両親をはじめ親戚一同は終戦後、音信のない貴方がたからの便りを一日千秋の思いで待ち続けましたが、届けられたのは町役場からの一通の死亡通知でした。
諦めていたとは言え、その報に接した両親の落胆と悲しみの日々が、今でもハッキリと思い出されます。
何故皆さんと一緒に帰って来てくれなかったのですか。家族、親戚一同が貴方がたの帰りを今日か明日かと心待ちにしていたのですよ。
貴方がたも帰りたかったでしょうし、さぞ無念であったことと思います。
戦後既に四十七年と言う永い歳月が過ぎ去ろうとしていますし、年号も「昭和」から「平成」に代わりました。
この間、日本の国内情勢は大きく変わりましたし、世界の情勢もベルリンの壁の崩壊やソ連邦の崩壊など大きく変わっております。
しかしながら、私達は貴方がたに何もして上げられない空虚さが、何時も心の中に残っていましたが、本日ここに三合里戦友会の皆様方のご尽力により、かくも盛大に追悼法要つかを営んで頂くことが出来、長い間の心の痞えが取れた感じが致します。本当に有り難うございました。心から厚くお礼申し上げます。
また戦友会の皆様方は貴方がたが尊い生命を失った三合里を訪れると聞いておりますので、その時は是非一緒に参りたいと存じております。淋しいでしょうが、どうぞ安らかに眠っていて下さい。
本日は全国各地からご遺族を始め戦友会の方々に、お集まり頂いているとのことですがここにこのような盛大な追悼法要を営んで頂きましたことは、私たち遺族にとりまして感謝に堪えないところであり、心からお礼申し上げる次第です。
三合里で戦没された英霊のご冥福をお祈り致しますと共に、併せて三合里戦友会の益々のご発展を祈念申し上げ、追悼の辞といたします。ご英霊の皆さん、安らかにお眠り下さい。
平成四年十一月十三日 遺族代表 福島幸之助
第七回総会は平成五年十一月十二日、神戸市須磨寺に於いて通常総会並びに第二回追悼法要を開催した。今回は関西地区のご遺族の方々からの要望もあり、関西地区会員の熱心な協力により実現出来たものであるが、須磨寺を選定した理由は管長小池義人氏がソ連抑留の経験があり、かねてから抑留戦没者の慰霊を執り行って来たので、これも仏の結縁と存じ追悼法要をお願いした次第である。
法要は当日十三時から小池義人大僧正を導師として、会員並びにご遺族併せて七十三名の参列を得て、厳粛に執り行われた。導師の切々たる追悼の辞は同じ苦難を経た者ならではと、胸打たれるものがあった。
終わって総会並びに懇親会を開催し、会員相互の久闊を語り、遺族の方々との語らいに時の経つのも忘れた。今回は特に五十回忌までに現地墓参の見込みが無いことから、これに代わるものとして「三合里収容所小史」の編纂を、五十回忌記念事業として実施することが提案され、一同異議無く了承された。
今回は関西地区にも拘らず、東北、北海道及び九州地区から出席されたご遺族の方々がおられたが、これらの方々から次回は是非地方で法要をお願いしたいとの要望が出され、九州の会員達がそれではと名乗りを上げたので、本部で検討することを約して散会した。
次に真言宗須磨寺派大本山福祥寺(通称須磨寺)管長小池義人大僧正の追悼文を採録して永く念論されんことを望むものである。
追悼文
敬って真言教主大日如来両部界会諸尊聖衆、殊には高祖弘法大師等三国伝灯諸大阿闍梨耶、総じては仏眼所照一切三宝の境界に白して言さく、
夫れ惟るに人生の悲惨は戦争より大なるはなし、今次の大戦亦然り喪いし人命は百万を以って数え、国土は壊滅に瀕す真に傑然たるものあり。然り而して今次大戦の別して痛恨極まりなく銘記して忘るべからざるは戦い終りてのち、なお数万の犠牲を伴いしことなり。
特に中国東北部(旧満蒙)・北朝鮮・樺太・千島の地区においては軍人たると無辜の民間人たるとを問わず、条約無視の暴戻なるソ連軍の銃火に命奪われ、或いは曠野に彷徨の末力尽き或いはいわれなきシベリア抑留の果て非業に殃れし同胞数うるに由なく、今なお遺骨すら故国に迎うること能わざるなり。別して北朝鮮三合里地区は依然として頑迷なる世界の孤児、北朝鮮政権の支配下にあり、国際交流断絶の故に遺骨蒐集はおろか墓参すら不可能なる現状にあり。かくの如きは戦史上未だ嘗て見ざる悲惨事にして痛恨の情切々として胸を抉るものあり、あゝ無念なる哉!
茲に信心の施主「三合里戦友会」は、かねてシベリア抑留史上に於いてもともすれば見落されがちなる北朝鮮三合里収容所の特異性に鑑み、かつて彼処に於いて苦難の日々を共にせる戦友相寄り、往時を回想すると共に同地に於いて無念のうちに散華せる戦友諸士の霊名簿を作製し併せて年々同志相寄り一座の法莚を開きて戦友の菩提を弔うの慣例を確立したり、浄業誠に殊勝なりと言いつべし。偶々本年は法莚の場を景勝神戸須磨の地に選び、嘱するに小衲を以てし、還らざる御霊のここに来たり集い給わんことを祈る。蓋し当山にはシベリア及び湖北の地に散華せる戦没者の慰霊碑が存在し、且つ小衲またシベリア抑留五年の辛酸を嘗め、彼処において非業に斃れし戦友のための追薦の志趣しきりなるを知ればなり。
翻って思うに、近時における驚天動地の事件たる「ベルリンの壁崩壊」を端緒として東欧情勢は変転極まりなく、民族紛争は各地に頻発して遂にソ連邦は解体せり、而もその後継たるロシヤ政権は依然として動揺著しく国家存立の前途さえ危殆に瀕するの現状を呈しつゝあり、かくて今や世界に孤立せる北朝鮮政権の前途も正に累卵の危きにありと言わざるべからず、かかる混沌たる世界情勢とかつて我等がスターリン政権の下、彼処において苦難を嘗めさせられし日々とを思い合わせる時、転た感無量時の流れの激変、唯々今昔の感止みがたきものあるなり。
ともあれ、さしも頑迷固陋且つ傲慢無礼なりしソ連及びその後継たるロシヤのエリツィン大統領も、さすがに現世界に滔々たる自由化志向の風潮に抗し難く、遂に過日我らが「シベリア抑留」に関してその不当を認め謝罪すると共に、当時の戦没英霊に対して敬弔の意を表するに到れり。
然りと雖も、その前後のロシヤ政府の対日動向を見るに依然として傲慢固陋かくては懸案の「シベリア抑留」問題の解決に関しても誠意の奈辺にあるやを疑わざる得ず、況んやロシヤの主権下にあらざる北朝鮮三合里に関しては何らの解決の期待を持ち得ざる現状にあり、誠に遺憾の極みなり。冀くは三合里の丘に眠る戦友諸士の御霊よ、籍すに更なる日月を以てせよ。
本日茲に「三合里戦友会」は恒例の「物故戦友慰霊法要」を修するに当たり、生き残り戦友相寄り、物故戦友諸士の嘆き、痛恨を慰めんがため恭しく祭壇を荘厳にして幽魂の菩提を弔う。
仰ぎ願わくは高祖大師冥鑑を垂れ給い、我らが丹心を納受して北朝鮮三合里殉難の我等が戦友の精霊を永く楽邦に安んじ給わんことを。
乃至法界平等利益
維時平成五年十一月十二日
大本山須磨寺管長 大僧正小池義人 敬白
第八回総会並びに第三回慰霊祭は、平成六年十一月四日、熊本県護国神社に於いて第三回追悼法要を、同じく菊南温泉観光ホテルで第八回通常総会を開催した。
今回は中国、四国、九州地区を対象に九州地区会員の絶大な協力により実現したもので、会員、遺族併せ五十余名の参列を得て、厳粛にも和やかに執り行われた。総会後の懇親会では遺族の方々から、病没時の様子や病院の生活を関係各位に尋ねられ、涙ながらの語らいに時の経つのも忘れる一時であった。
来年は没後五十年にあたるので、五十回忌の法要を東京で開催することを約し、再会を誓って散会した。なお、今までの戦友会活動の軌跡を年表にまとめ、付属文書付表13に表示した。
三合里収容所小史 編集委員会
委員長 山本 三郎 (東京)
委員 阿部 鐵太郎 (神戸)
〃 佐藤 廉 (神戸)
〃 小室 鐵雄 (東京)
〃 小田島 英雄 (新庄)
〃 若林 喜良 (三国)
〃 中川 清 (和歌山)
〃 中川 俊二 (大阪)
〃 中野 芳太郎 (萩)
〃 高倉 桃太 (八代)
〃 仲 啓一 (野田)
〃 古賀 妙 (東京)
〃 保富 雅介 (東京)
〃 岩田 公子 (川崎)
三合里収容所小史 奥付
平成七年十月五日〔非売品〕
著者 三合里収容所小史縞集委員会
発行者 三合里戦友会
事務局 〒162 東京都新宿区若松町11の1の201 小室繊雄 電話03-3202-9986
編集・制作 朝日新聞東京本社朝日新聞出版サービス 〒 東京都中央区築地5の3の2 電話03-3545-0131
印刷・製本 図書印刷株式会社
付図 三合里付近地図
付図秋乙付近地図